Italiano
English
4.000 € / mese

In Famiglia – Villa in Affitto a Basiglio

Villa in affitto • Basiglio (Basiglio - Centro Storico) - via monsignor rossi
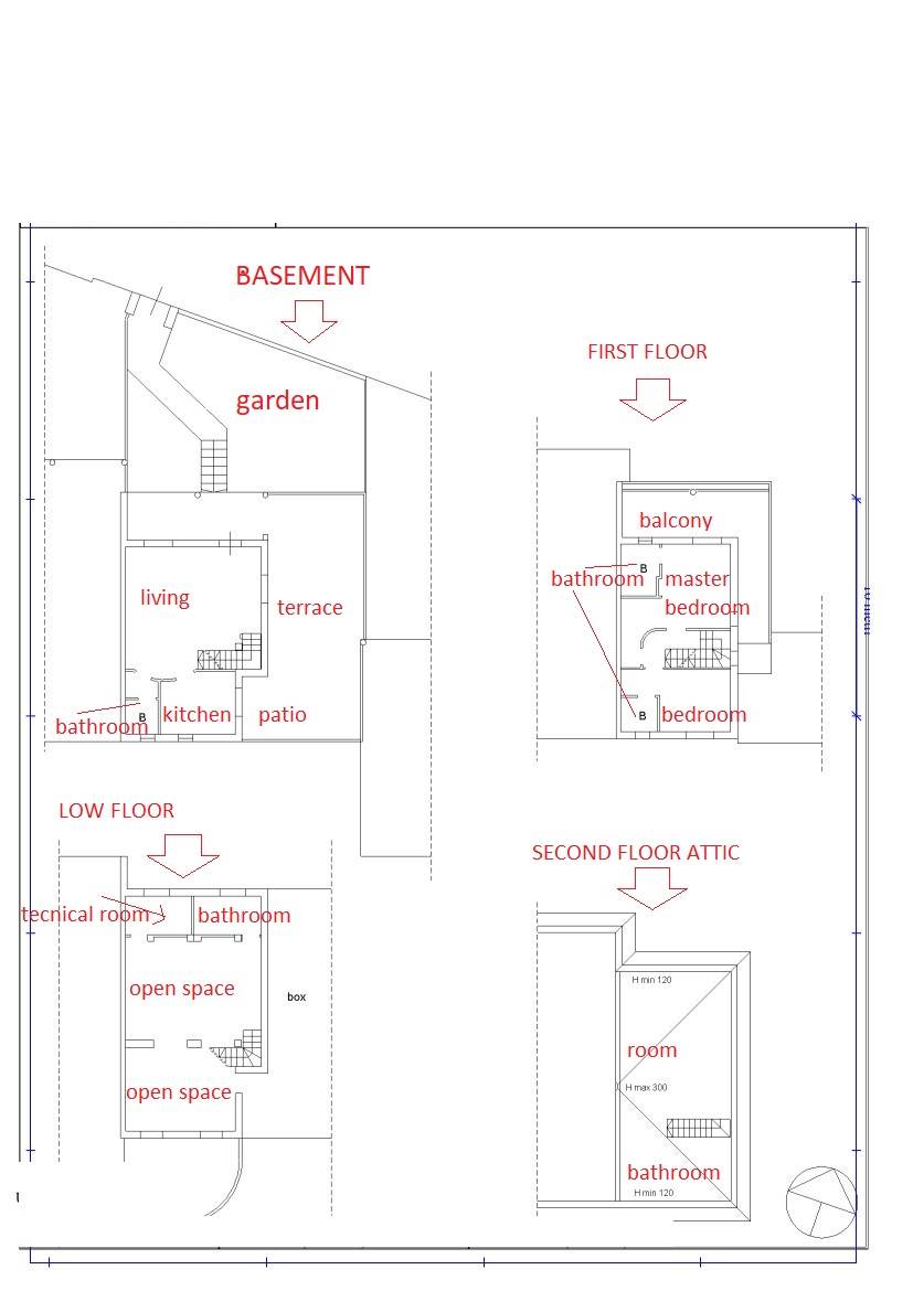
Deliziosa e accogliente, questa villetta in affitto a Basiglio si affaccia su una delle vie più recenti del centro storico. Sviluppata su quattro livelli, vanta doppia esposizione con una splendida vista sulla campagna del Parco Sud di Milano.
Il giardino privato curato e rigoglioso conduce all’ingresso principale, che si apre sulla zona living. Qui, troviamo il soggiorno, il bagno ospiti, e la moderna cucina annessa a una bellissima veranda stile giardino d’inverno utilizzabile come sala da pranzo.
Il primo e secondo piano ospitano le camere da letto, tutte dotate di bagno privato, e una comoda cabina armadio. Mentre al livello più basso si trova la taverna con camino: uno spazio perfetto per trascorrere dei momenti in famiglia.
Infine, la casa presenta un ampio garage a tre posti auto più posto moto o bici, con ingresso diretto.
La villetta, giù libera, è dotata di aria condizionata e arredata di cucina, elettrodomestici e armadi a muro.
Caratteristiche principali
Codice
55VABD111311
Città
Basiglio (Basiglio - Centro Storico)
Categoria
Villa
Prezzo
4.000 € / mese
Spese condominiali
230 € / anno
Locali
6
Mq
225
Classe energetica
E
122,11
Stato Immobile
Buono
Grado
Signorile
Riscaldamento
Autonomo
Tipo Riscaldam.
Caldaia
Tipo Impianto
Radiatori
Acqua Calda
Autonoma
Raffrescamento
Split

Accessori: Aria Condizionata, Veranda, Zanzariere

Mappa
via monsignor rossi , Basiglio (MI)

Simona

Richiedi informazioni
Invia
Condividi su
Cookie preference